ALYAN Inmobiliaria

  • 5512893921
  • alyan-inmobiliaria.easybroker.com

OFICINA EN RENTA EN SANTA FE

Cruz Manca, Cuajimalpa de Morelos

US$ 20.50 per m² For Rent

  • 2 Bathrooms
  • 13 Parking spaces
  • 444.77 m² total space
  • EB-MH8705 ID
Description

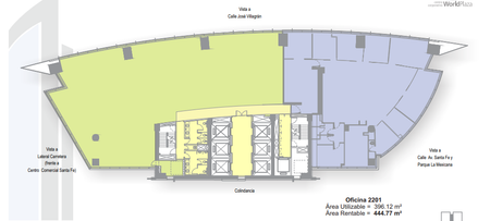
Área útil: 396.12m2
área rentable: 444.77m2
Mantenimiento: 4 USD x m2
Estacionamiento: 13 cajones ( 2 VIP, 2 Tándem, 9 flotantes)

Disponibilidad: Inmediata

Forma de entrega:
Arquitectónicos
Recepción
cocineta
área de guarda
site
área de staff
2 salas de juntas
4 oficinas gerencia
2 oficinas dirección

Acabados:

Subdivisiones de Tablaroca y vidrio
Pisos alfombra y porcelanato
Puertas madera y vidrio
plafones lisos y modulares

Instalaciones:
Instalación eléctrica
Instalación Hidráulica
Instalación voz y datos
Instalación Aire acondicionado
Sistema contra incendios

** Información actualizada y confiable sin embargo puede sufrir cambios de ultimo momento sin previo aviso.

Amenities
  • Covered parking
  • Street parking
  • Closed-Circuit Security System
  • Kitchen
  • Elevator
  • 24 Hour Security
  • Single story

ALYAN Inmobiliaria

  • 5512893921
  • alyan-inmobiliaria.easybroker.com

ALYAN Inmobiliaria

  • 5512893921
  • alyan-inmobiliaria.easybroker.com